- トップページ
- 新築一戸建てをエリアから探す
- 相模原市緑区
- 大島
- 相模原市緑区大島 全15区画5号棟(HH)
新築一戸建て
相模原市緑区大島 全15区画5号棟(HH)
情報更新日:2026/04/11 次回更新予定日:2026/04/25
所在地神奈川県相模原市緑区大島[周辺地図]
交 通横浜線「橋本」駅バス12分 停歩6分





橋本ハウジングセンターでは幅広い地域、物件に詳しいスタッフがご紹介、ご案内いたします。
ローンや不動産に関するちょっと気になってること、知りたい事、お気軽にご相談ください。
ライフスタイルにあったお住まいのご案内、建物参考プラン、資金プランをご提案いたします♪
当店の駐車場があり、お車でお越し頂けます。小さいお子様のためのキッズスペースがございますので、ご家族で安心してお越しください。
ローンや不動産に関するちょっと気になってること、知りたい事、お気軽にご相談ください。
ライフスタイルにあったお住まいのご案内、建物参考プラン、資金プランをご提案いたします♪
当店の駐車場があり、お車でお越し頂けます。小さいお子様のためのキッズスペースがございますので、ご家族で安心してお越しください。
担当スタッフより

- 田島 健治
- (HH)18帖の広々としたリビング!ウォークインクローゼットなど収納豊富!ウッドデッキ付き!カースペースに車が2台駐車可能(車種による)!「おうちは買いたいけど色々不安で踏み出せない・・。」「こんなおうちに住みたい!」「月々○○円ぐらいの返済でいい物件ないかな・・・。」「頭金ゼロでも大丈夫かな?」等々、なんでもお気軽にご相談下さい!
物件詳細情報
物件No.31023512540
| 所在地 | 神奈川県相模原市緑区大島 | ||
|---|---|---|---|
| 交通 | 横浜線「橋本」駅バス12分 バス停「上九沢団地」停歩6分 相模線「橋本」駅バス12分 バス停「上九沢団地」停歩6分 京王相模原線「橋本」駅バス12分 バス停「上九沢団地」停歩6分 |
||
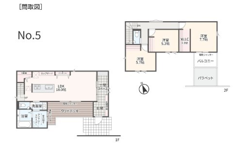
| 間取 | 3LDK (LDK18帖、洋室7.7帖、洋室5.7帖、洋室5.2帖) | ||
| 土地面積 | 160.37m² | ||
| 建物面積 | 110.54m² | ||
| 販売戸数 | 1戸 | 総戸数 | 全15戸 |
| 構造・規模 | 木造 2階建て | 築年・入居 | 2026年7月 |
| 建物現況 | 建築中 | 建築確認番号 | 第KBI-SGM25-10-5129号 |
| 引渡時期 | 相談 | 地目 | 雑種地 |
| 建ぺい率 | 50% | 容積率 | 80% |
| 都市計画 | 市街化区域 | 権利種類 | 所有権 |
| 取引態様 | 媒介 | ||
| 設備 | 公営水道、本下水、都市ガス | ||
| 備考・制限等 | 省エネルギー性能:目安光熱費 | ||
こだわり項目
LDK15帖以上全居室収納ウッドデッキ複層ガラスパントリー(食器・食品の収納庫)トイレ2ヶ所温水洗浄便座浴室乾燥機浴室暖房追焚機能浴室1坪以上全居室フローリングリビング階段ウォークインクローゼットTVモニタ付インターホン太陽光発電システム24時間換気システム保育園・幼稚園800m以内公園800m以内
- ※価格は物件の代金総額を表示しており、消費税が課税される場合は税込み価格です。(1,000円未満は切り上げ。)
税率は引き渡し時期により異なりますので、各物件の詳細につきましてはお問い合わせください。 - ※敷地権利が借地権のものは価格に権利金を含みます。
- ※制作中に内容が変更される場合もありますので、あらかじめご了承ください。
- ※購入の前には物件内容や契約条件についてご自身で十分な確認をしていただくようにお願いいたします。
- ※完成予想図はいずれも外構、植栽、外観等実際のものとは多少異なることがあります。
- ※CG合成の画像の場合、実際とは多少異なる場合があります。
周辺地図
周辺施設一覧
- ショッピングセンター
- スーパー
- コンビニ
- ドラッグストア
- ホームセンター
- 飲食店
- その他店舗
- 商店街
- 大学
- 専門学校
- 高校・高専
- 中学校
- 小学校
- 保育園
- 幼稚園
- 公民館・児童館
- 病院
- 郵便局
- 役所
- 図書館
- 金融機関
- 警察・消防
- 趣味・娯楽施設
- 公園・運動施設
- 周辺の街並み
- 駅
- その他
- トップページ
- 新築一戸建てをエリアから探す
- 相模原市緑区
- 大島
- 相模原市緑区大島 全15区画5号棟(HH)

営業時間:9:30~19:00/毎週水曜日、木曜日定休







































