- トップページ
- 新築一戸建てをエリアから探す
- 相模原市中央区
- 星が丘
- 相模原市中央区星が丘 全5棟4号棟(HH)
新築一戸建て
相模原市中央区星が丘 全5棟4号棟(HH)
情報更新日:2026/04/24 次回更新予定日:2026/05/08
所在地神奈川県相模原市中央区星が丘4丁目[周辺地図]
交 通相模線「上溝」駅徒歩8分



橋本ハウジングセンターでは幅広い地域、物件に詳しいスタッフがご紹介、ご案内いたします。
ローンや不動産に関するちょっと気になってること、知りたい事、お気軽にご相談ください。
ライフスタイルにあったお住まいのご案内、建物参考プラン、資金プランをご提案いたします♪
当店の駐車場があり、お車でお越し頂けます。小さいお子様のためのキッズスペースがございますので、ご家族で安心してお越しください。
ローンや不動産に関するちょっと気になってること、知りたい事、お気軽にご相談ください。
ライフスタイルにあったお住まいのご案内、建物参考プラン、資金プランをご提案いたします♪
当店の駐車場があり、お車でお越し頂けます。小さいお子様のためのキッズスペースがございますので、ご家族で安心してお越しください。
担当スタッフより

- 田島 健治
- (HH)16帖以上の広々としたリビング!全室収納が豊富!カースペースに車が2台駐車可能!(車種による)「おうちは買いたいけど色々不安で踏み出せない・・。」「こんなおうちに住みたい!」「月々○○円ぐらいの返済でいい物件ないかな・・・。」「頭金ゼロでも大丈夫かな?」等々、なんでもお気軽にご相談下さい!
物件詳細情報
物件No.20000448558
| 所在地 | 神奈川県相模原市中央区星が丘4丁目 | ||
|---|---|---|---|
| 交通 | 相模線「上溝」駅徒歩8分 横浜線「相模原」駅バス16分 バス停「横山六丁目」停歩2分 |
||
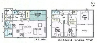
| 間取 | 3SLDK + 収納充実,明るいリビング (LDK16帖、洋室8帖、洋室5.75帖、洋室5帖、S5帖) | ||
| 土地面積 | 126.95m² 実測 | ||
| 建物面積 | 93.96m² 実測 | ||
| 総戸数 | 全5戸 | 構造・規模 | 木造 2階建て |
| 築年・入居 | 2026年5月 | 建築確認番号 | 第KBI-SGM25-10-4271号 |
| 駐車スペース | あり | 引渡時期 | 期日指定有(2026年5月下旬) |
| 国土法届出 | 不要 | 地目 | 畑 |
| 用途地域 | 第二種住居地域 | 建ぺい率 | 70% |
| 容積率 | 200% | 都市計画 | 市街化区域 |
| 権利種類 | 所有権 | 接道 | 北東側6M公道に2.7M接道 |
| 取引態様 | 媒介 | ||
| 設備 | 公営水道、本下水 都市ガス,電気,上水道,下水道,システムキッチン,カウンターキッチン,浄水器,給湯,トイレ2箇所,温水洗浄便座,シャンプードレッサー,浴室乾燥機,ルーフバルコニー,24時間換気システム,収納スペース,床下収納,モニター付きインターホン,火災警報器等設置済 建設住宅性能評価取得(予定含む) |
||
| 備考・制限等 | 省エネルギー性能:レベル3:★★★☆☆☆ | ||
こだわり項目
高台LDK15帖以上床下収納全居室収納浄水器システムキッチンカウンターキッチン3口以上コンロトイレ2ヶ所温水洗浄便座浴室乾燥機浴室に窓TVモニタ付インターホン24時間換気システム小学校800m以内保育園・幼稚園800m以内スーパー400m以内コンビニ400m以内
- ※価格は物件の代金総額を表示しており、消費税が課税される場合は税込み価格です。(1,000円未満は切り上げ。)
税率は引き渡し時期により異なりますので、各物件の詳細につきましてはお問い合わせください。 - ※敷地権利が借地権のものは価格に権利金を含みます。
- ※制作中に内容が変更される場合もありますので、あらかじめご了承ください。
- ※購入の前には物件内容や契約条件についてご自身で十分な確認をしていただくようにお願いいたします。
- ※完成予想図はいずれも外構、植栽、外観等実際のものとは多少異なることがあります。
- ※CG合成の画像の場合、実際とは多少異なる場合があります。
周辺地図
周辺施設一覧
- ショッピングセンター
- スーパー
- コンビニ
- ドラッグストア
- ホームセンター
- 飲食店
- その他店舗
- 商店街
- 大学
- 専門学校
- 高校・高専
- 中学校
- 小学校
- 保育園
- 幼稚園
- 公民館・児童館
- 病院
- 郵便局
- 役所
- 図書館
- 金融機関
- 警察・消防
- 趣味・娯楽施設
- 公園・運動施設
- 周辺の街並み
- 駅
- その他
- トップページ
- 新築一戸建てをエリアから探す
- 相模原市中央区
- 星が丘
- 相模原市中央区星が丘 全5棟4号棟(HH)

営業時間:9:30~19:00/毎週水曜日、木曜日定休





































